Предназначен для получения насыщенного пара низкого давления 1500 кг пара в час - температурой не более 115 °С и давлением не более 0.07 МПа, 0.7 кгс/cм² или 0,7 бар, мощность 1,1 МВт. Применяют паровые котлы 1,5 т пара в час на газе строительные организации, бетонные заводы, ЖБИ, воинские части, мясокомбинаты, консервные заводы, автоколонны, ДСУ, хлебозаводы, мелькомбинаты, маслосырзаводы, птицефабрики, свинокомплексы, предприятия нефтегазовой промышленности и сельского хозяйства в животноводстве, птицеводстве.
Паровые котлы КП 1.5-115-0.07 Г/ГН/ГС могут работать на газе низкого и среднего давления в зависимости от горелочного устройства и регулятора давления .
Наш котельный завод также производит паровые котлы производительностью 1500 кг/ч с другими давлениями и температурой.
Конструкция паровых котлов марки STEAMEXPERT существенно отличается от газовых дымогарных многоходовых котлов марки КПа, КПо, Орлик, ПАР-1.5-0.07, Орел.
Газовый паровой котел STEAMEXPERT КП 1500-0,07-115 - энергоэффективный, жаротрубный, горизонтальный, компактный, круглый, с естественной циркуляцией и высоким КПД.
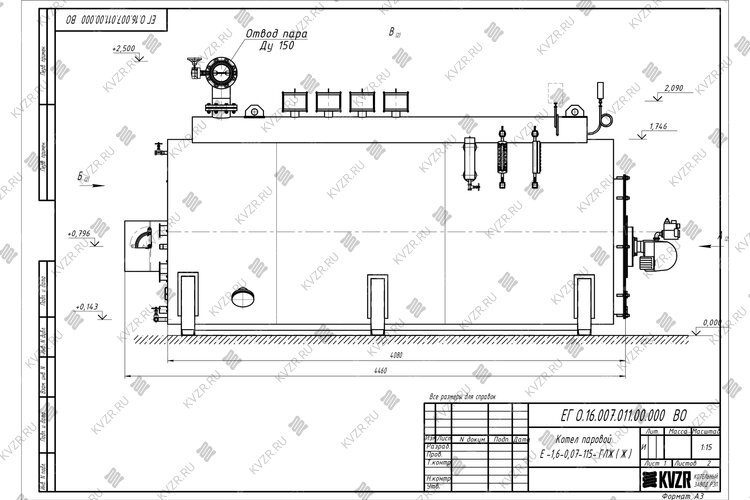
Теплообменник изготавливается из двух стальных цилиндров разного диаметра, вставленных один в другой и соединенных между собой фланцами и конвективными трубами. В верхней части теплообменника приварен паросборник, представляющий собой полуцилиндр. Конвективный трубный пучок соединяет верхнюю и нижнюю часть водяной рубашки котла, пар образуется при испарении нагреваемой воды и собирается в паросборной камере, далее через паропровод направляется потребителю на технологические нужды. Дымовые газы проходят через трубный пучок и выходят в верхней части котла. В передней части жаровой трубы размещена топка амбразурой под горелку, а в задней части - конвективный пучок труб. Топливо подается через горелку, паропроизводительность регулируется путем увеличения или уменьшения количества топлива. Температура сухого насыщенного пара низкого давления регулируется изменением давления пара, чем ниже давление пара, тем ниже температура.
Паровой газовый котел 1 5 т может работать с длинофакельными горелками различных производителей – отечественными EMMA и импортными UNIGAS, BALTUR, ECOSTAR, FBR S.R.L., в качестве топлива может применяться природный газ низкого и среднего давления, а также сжиженный газ.
Благодаря оптимальной конструкции энергоэффективный паровой газовый котел 1,5 т работает без экономайзера.
Цена на паровые котлы 1.5 т пара и давлением 0.07 МПа на газе включает полный комплект - манометры, указатели уровня с кранами, предохранительные клапаны, паровые и продувочные вентили, вентилятор поддува, щит управления. Горелка, насосы и автоматика поставляются дополнительно.
Котлы 1500 кг 0.7 кгс/cм² для производства пара на газе поставляются блоками максимальной заводской готовности. Котельный блок устанавливается в котельной на специально подготовленную ровную поверхность. Котел подсоединяется по воде, устанавливается запорная арматура на подводящем трубопроводе и отводящем паропроводе, устанавливаются предохранительные клапаны и контрольно-измерительные приборы. Подключается котельная автоматика и горелка. Проводятся пуско-наладочные работы. Типовые монтажные схемы вы можете изучить во вкладке схемы подключения данного оборудования.
Мы производим и поставляем промышленные паровые котлы 1500 кг пара на газе во все регионы России, Казахстана, Монголии, Таджикистана, Узбекистана, Белоруссии, Армении, Литвы, Киргизии. Доставка может осуществляться транспортными компаниями, авто и железнодорожным транспортом. Оперативно рассчитаем стоимость газового парового котла 1.5 т пара в час с доставкой в Ижевске после получения вашего запроса. Для того чтобы купить паровой котел 1500 кг пара на газе в Ижевске, свяжитесь с отделом сбыта по телефону (38-52) 29-97-41 (42), либо оформите заявку онлайн. Наши менеджеры дадут консультацию по подбору вспомогательного оборудования для выбранных вами моделей и рассчитают стоимость доставки до вашего региона и населенного пункта. Также предлагаем вам выполнить проект реконструкции котельной.
Цена парового котла 1.5 т пара -115 °С -0,07 МПа газового включает в себя автоматику, запорную арматуру и КИП в пределах котла, предохранительные клапаны. Ниже приведена подробная информация.
Для эффективной и надежной работы парового котла 1.5 т пара -115 °С -0,07 МПа газового вам потребуется дополнительное оборудование - автоматика, горелка и 2 насоса (один рабочий, второй резервный). Мы предлагаем рассмотреть типовые варианты комплектации.
По необходимости устанавливается водоподготовительное оборудование. Водоподготовка выбирается на основании анализа воды.
Типовую схему монтажа и обвязки котла вы можете посмотреть во вкладке схемы подключения.
Автоматика выполняет следующие функции:
Энергоэффективный газовый паровой котел 1500 кг / 1.5 т пара -115 °С -0,07 МПа / 0,7 кгс/cм², предназначен для получения насыщенного пара температурой не более 115 °С и давлением не более 0,07 МПа 0.7 кгс/cм² для технологических целей в производстве. Устанавливается в производственных и промышленных котельных.
 
Для правильного подключения парового котла 1.5 т пара -115 °С -0,07 МПа газового в котельной необходимо оставить проемы для обслуживания оборудования во время эксплуатации. Эти расстояния рекомендованы СНИП II-35-76. На данной схеме представлены их размеры. Кроме того мы составили примерный план, как можно произвести расположение подключение оборудования, а также указали перечень минимально необходимого вспомогательного оборудования для работы котла.
К вспомогательному оборудованию при работе парового котла 1.5 т пара -115 °С -0,07 МПа газового относятся:
Водоподготовительная установка подбирается на основе данных химического анализа воды, проводимого специализированной лабораторией.
 
В передней части жаровой трубы размещена топка, а в задней части - конвективный пучок труб.
В верхней части котла приварен паросборник, представляющий собой полуцилиндр. На паросборной камере устанавливаются предохранительные клапаны и два штуцера Ду15, один для установки электроконтактного манометра, второй для спуска воздуха с котла при заполнении водой при подготовке к работе.
К фронтовой плите котла крепится газовая горелка для подачи топлива в топку котла через амбразуру.
На задней крышке в основании дымовой трубы выполнен предохранительный взрывной клапан.
Образующиеся в топочной камере продукты сгорания проходят конвективный пучок труб и выводятся через трубу дымовую, установленную на корпусе в хвостовой части котла.
 
При работе котла питание водой парового котла 1.5 т пара -115 °С -0,07 МПа газового производится через штуцер.
Подпитка котла ведется из питательного бака через насос, соединительную арматуру. На трубопроводе подпитки котла водой должно быть установлено запорное устройство и обратный клапан. Запорное устройство должно располагаться между котлом и обратным клапаном.
Для подпитки устанавливается не менее двух насосов с электроприводом. На стороне нагнетания каждого центробежного насоса до запорного органа должен быть установлен обратный клапан.
На трубопроводе выдачи пара, в непосредственной близости от котла, устанавливается запорное устройство.
На котле имеются продувочные штуцера Ду25, Ду15 и Ду10. Штуцер Ду25 предназначен для удаления шлама, образующегося в результате работы котла, периодической продувки котловой воды и для спуска воды в случае необходимости. Штуцер Ду15 предназначен для продувки водомерной колонки. Штуцера Ду10 предназначены для продувки указателей уровня.
В передней части жаровой трубы в верхней части установлена легкоплавкая пробка – предохранительное устройство прямого действия.
На боковой части корпуса устанавливается датчик уровней воды, связанный с паровым и водным пространством котла соединительными трубками не менее Ду25.
На боковой части корпуса устанавливается соединительная труба (колонка), служащая для установки двух указателей уровня, и связанная с паровым и водным пространством котла соединительными трубками не менее Ду25.
На боковой части корпуса внизу у котла имеется ревизия с крышкой, для периодического осмотра состояния поверхностей нагрева со стороны водяного объема.
 
Предохранительные клапаны предназначены для стравливания давления в паровом газовом котле при превышении допустимого значения. На котле установлены самопритирающиеся предохранительные клапаны КПС-0.5 пропускной способностью не менее часовой производительности котла.
Принцип работы клапана состоит в том, что при достижении паром номинального давления избыток пара выходит наружу. Клапана оборудованы ручным приводом для открывания при проверке их на срабатывание.
Щит управления совместно с электрооборудованием предназначен для управления работой парового котла 1.5 т пара -115 °С -0,07 МПа газового и защиты его при возникновении аварийных ситуаций. На двери щита расположены сигнальная лампа и органы управления работой котла, с табличками, указывающими их назначение. По месту либо на стенке щита крепится сигнальная сирена.
На паросборной камере устанавливается один электроконтактный манометр. При монтаже манометра, показывающего давление пара в котле, должна быть предусмотрена установка трехходового крана между манометром и сифонным устройством. Допускается установка других устройств, позволяющих контролировать показания рабочего манометра, путем подключения в систему контрольного манометра. Электроконтактный манометр выполняет роль датчика давления и предназначен для отключения дутьевого вентилятора и включения аварийной сигнализации при достижении паром предельно допустимого давления.
Датчик уровней служит для подачи команды на включение и отключение питательного насоса парового котла 1.5 т пара -115 °С -0,07 МПа газового в процессе работы.
Указатель уровня воды предназначен для визуального контроля за уровнем воды при работе котла. На корпусе указателя крепится рамка или наносятся метки, указывающие верхний и нижний уровень воды.
Легкоплавкая пробка предназначена для сброса пара во внутренний объем топочной камеры в случае упуска воды ниже аварийного уровня и достижения фактического уровня воды на работающем котле ниже верхней кромки жаровой трубы. При этом легкоплавкая пробка перестает охлаждаться котловой водой и нагревается до температуры газов в топочной камере. Из-за нагрева наполнитель легкоплавкой пробки плавится и выдавливается давлением пара в топочную камеру, при этом сбрасывается давление пара и дополнительно гасится пламя.
Гарантийный срок на газовый паровой котел 1500 кг / 1.5 т пара -115 °С -0,07 МПа / 0,7 кгс/cм² 24 месяца.
 
Отзыва о товаре пока нет, будьте первыми!
Газовые паровые котлы 1500 кг / 1.5 т пара предназначены для получения насыщенного пара температурой не более 115 °С давлением не более 0,07 МПа / 0,7 кгс/cм². Котельный завод производит котлы паровые мощностью от 300 кг пара в час до 2.5 т пара в час на всех видах топлива, а так же весь перечень сопутствующего котельного оборудования- горелку, насосы, автоматику, водоподготовку и прочее. Специалисты нашего завода бесплатно подберут сопутствующее оборудование, а в случае необходимости, выполнят проектирование, монтаж и пуско-наладку котельной установки.
