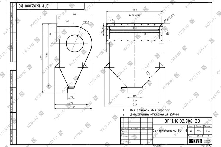
Золоуловители ЗУ 1,6 относятся к типу горизонтального циклона по расположению оси очищаемого потока газа. Дымовой газ поступает во входное отверстие и движется между стенками корпуса. Под действием гравитационных сил из потока очищаемого газа выделяются твердые частицы, которые накапливаются в бункере. Зола удаляется через шибер. Очищенный газ отводится из золоуловителя по патрубку через выходное отверстие.
В комплект поставки золоуловителей входит: бункер-накопитель и корпус золоуловителя.
Золоуловитель представляет собой горизонтальный циклон, предназначенный для сухой инерционной очистки газов от летучей золы (более 50 мкм) с максимальной температурой 260 °С.
Эксплуатируются в помещениях и вне помещений под навесом при температуре окружающего воздуха от -60 °С до +40 °С. Золоуловители ЗУ 1,6 могут устанавливаться как сразу за котлом, так и за пределами котельной на группу котлов.
Золоуловители представляют собой корпус с криволинейными стенками, соединенный с источником выброса дымовых газов фланцем прямоугольного сечения на входном отверстии и круглым отверстием на боковой стенке для отвода очищенных газов. Соединения должны быть газоплотными с обязательным уплотнением асбестовым картоном или шнуром.
Золоуловитель ЗУ 1,6 применяется для улавливания золовых отложений после водогрейных котлов КВр и КВм мощностью 0,4, 0,5, 0,6, 0,8, 0,93, 1,28, 1,25, 1,6, 2,15 Гкал, производства Котельный завод "РЭП", а также котлов других заводов изготовителей.
Для того чтобы купить золоуловитель ЗУ 1,6 в Ижевске, вы можете сделать заявку в отдел сбыта по телефону (38-52) 29-97-41 (42), либо оформить заказ онлайн. Наши менеджеры дадут консультацию и рассчитают стоимость доставки до вашего региона и населенного пункта.
 
Отзыва о товаре пока нет, будьте первыми!
Золоуловитель ЗУ представляет собой горизонтальный циклон, предназначенный очистки газов от летучей золы с температурой до 290 °С. Применяется для улавливания золы после водогрейных котлов КВр. Является аналогом золоуловителя ЗУ-2-1, ЗУ-2-2.
