Скребковый цепной транспортер подачи угля в котельную с улицы и удаления золы и шлака из под котлов за пределы котельной.
Транспортер скребковый ТС-2-28 применяется в механизированных котельных с паровыми и водогрейными котлами для подачи топлива в бункеры топок и удаления золы и шлака.
Уголь со склада подаётся грейфером ГМЧ в загрузочный бункер угольной дробилки ВДГ-10 ил ВДП-15, где происходит измельчение во фракцию (поступающая не более - 300 мм, дроблёная - 40...100 мм) для дальнейшего перемещения дроблёного угля транспортером скребковым ТС-2-28 и загрузки в приёмный бункер топок ТШПМ, ТЛЗМ, ТЧЗМ, ТЛПХ, ТЛ котлов КВм, ДСЕ, УСШВ, КЕ, ДКВР.
Зола и шлак транспортером скребковым ТС-2-28 перемещается при помощи движущихся скребков по неподвижному желобу в бункер золы и шлака или отвал.
Транспортер скребковый ТС-2-28, разрабатывается индивидуально в соответствии с техническим заданием, отличается длиной и количеством поворотных секций. Котельный завод "РОСЭНЕРГОПРОМ" производит топливоподачи и золоудаление производительностью от 0,5 до 10 т/ч, длиной до 50 метров. В случае необходимости установки топливоподачи и шлакоудаления скребкового длиной более 50 метров применяют пересыпные транспортеры шлакоудаления.
| Протяженность трассы, м | до 50 | 
| Производительность, т/ч, max | 30 | 
| Скорость движения цепи, м/с | 0, 5 | 
| Максимальный размер кусков шлака(угля), мм | 100 | 
| Длина секции, мм | 3000 | 
| Угол подъема, град | 28 | 
| Шаг скребков цепи, мм | 320 | 
| Двигатель, мощность, кВт | 7,5 | 
| Редуктор Ц2У-250, передаточное число | 31,5 | 
| Частота вращения, об/мин | 1000 | 
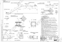
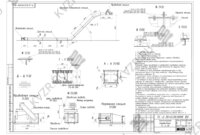
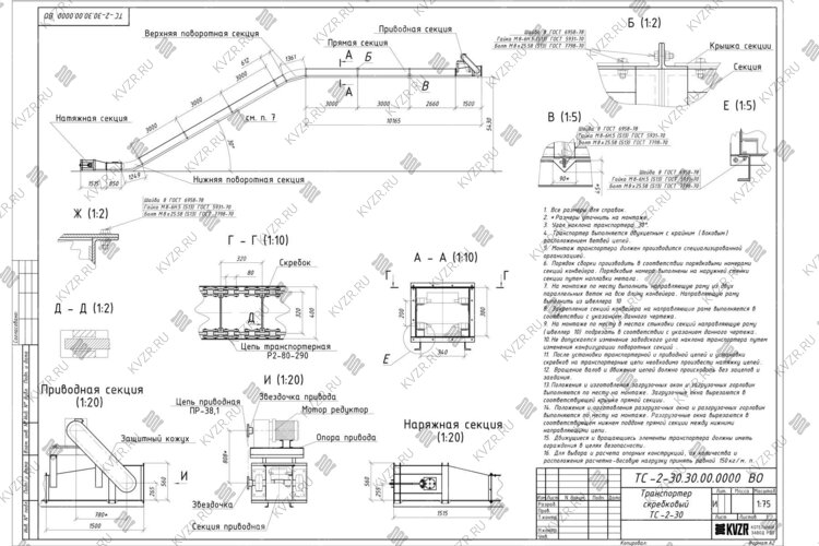
Транспортер скребковый ТС-2-28 состоит из привода, натяжной, приводной, прямолинейных секций, поворотных секций, скребковой цепи. Путем изменения количества прямолинейных секций и применением поворотных секций транспортера ТС имеется возможность создавать различную траекторию с углом перегиба 28°. Привод цепной состоит из одного электродвигателя и редуктора. Натяжная секция состоит из рамы, вала со звездочками, подшипниковых узлов в подвижных корпусах. Приводная секция состоит из рамы, вала приводного со звездочкой, подшипниковых узлов в неподвижных корпусах. Прямолинейная секция представляет собой короб с направляющими для цепей. Поворотная секция изогнута на 36°. Скребковая цепь транспортера ТС состоит из двух тяговых разборных цепей, с закрепленными между ними скребками. Для удобства обслуживания, очистки коробов, регулирования узлов, а так же проведения ремонтных работ секции ТС имеют полностью съемную крышку.
Транспортер скребковый ТС-2-28 поставляется секциями, общая сборка транспортера шлакоудаления производится на месте монтажа и выполняется в соответствии с проектом и инструкцией по монтажу и сборке. Собирается скребковое шлакоудаление в следующей последовательности: собрать секции конвейера, прямые секции и натяжную секции, соединить горизонтальную и наклонную части при помощи поворотной секции, установить цепь со скребками в собранные секции, подключить привод.
Транспортер скребковый ТС-2-28 поставляется следующими узлами:
Транспортер ТС-2-28 поставляется со следующей эксплуатационной документацией.
Для того чтобы купить ТС 2-28 в Ижевске, вы можете оформить заявку в отделе сбыта по телефону (38-52) 29-97-41 (42), либо оформить заявку онлайн. Транспортер скребковый ТС-2-28 транспортируется автотранспортом и ж/д контейнерами. Наши менеджеры дадут консультацию по подбору вспомогательного оборудования для выбранных вами моделей и рассчитают стоимость доставки до вашего региона и населенного пункта. Также предлагаем вам выполнить проект реконструкции котельной.
В котельных с механизированным золошлакоудалением, применяются бункеры золы и шлака. Бункер золы и шлака, объем и его конструкция рассчитывается в зависимости от производительности котлов и схемы котельной. Объем бункера шлака и золы от 1 до 7 м3. Комплектация бункера золы и шлака может быть как с каркасно-опорной конструкцией, так и без нее, согласно техническому заданию и заполненному опросному листу.
 
Отзыва о товаре пока нет, будьте первыми!
