Котел КВр 0.4 КБД в Ижевске

Версия
для печати
В наличии на складе Цена в рублях с НДС 850 000
Получите скидку
у менеджера
Цена на котел КВр 0.4 КБД с доставкой от 880 000 рублей с НДС
Вид топкиРучная, Колосниковая
Максимальная тепловая мощность, МВт0.4
ТопливоТвердое, Уголь
Доставка ТК в г. Ижевск и по России
Безналичный расчет
Подобрать котел по мощности
Опросный лист
Эту продукцию можно
купить в лизинг
  • Технические
    характеристики
  • Описание
    товара
  • Комплект
    поставки
  • Дополнительно
    потребуется
  • Подключение и
    монтаж
  • Доп
    услуги
  • Сертификаты и
    гарантии
  • Отзывы о
    продукции
  • Видео
    обзор
  • Подбор
    котла
  • Вопрос
    ответ

Технические характеристики

Технические характеристики водогрейного жаротрубного котла КВр 0.4
Тип Водогрейный котел КВ
Тип отопительного котла Твердотопливный
Бренд HEATEXPERT
Марка Водогрейный жаротрубный котел КВр 0.4
Вид топки Ручная, Колосниковая
Конструкция котла Жаротрубный
Максимальная тепловая мощность, МВт 0.4
Диапазон регулирования мощности, % 50-100
Топливо Твердое, Уголь
Низшая теплота сгорания проектного топлива, кКал/кг 5230
КПД котла на УГЛЕ, не менее, % 80
Расход УГЛЯ при максимальной нагрузке котла, кг/ч 83
Расход условного топлива, кг/ч 62
Максимальная температура воды на выходе из котла, °C 95
Давление рабочей среды, не более, (кгс/см²) 0.30 (3)
Полный объем котла, м³ 2.1
Номинальный расход теплоносителя (при работе котла в системе отопления), м³/ч 14
Номинальный расход теплоносителя (при работе котла в системе ГВС), м³/ч 1.3
Расход теплоносителя через котел min, м³/ч 0.5
Аэродинамическое сопротивление, Па (мм. вод. ст.) 3.1 (0.31)
Тяга Уравновешенная
Объем топочной камеры, м³ 1.08
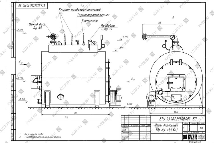
Размер топочной камеры, длина*ширина*высота, мм 1250х1100х850
Активная площадь решетки горения, м² 1.13
Присоединительные размеры выход, Ду 65
Присоединительные размеры по водяному тракту (при работе котла в системе отопления), Ду 80
Присоединительные размеры по водяному тракту (при работе котла в системе ГВС), Ду 25
Присоединительные размеры газохода уходящих газов, ширина*высота / сечение, мм/м² Ду 400/0.12
Габаритные размеры котла, длина*ширина*высота, мм 2500х1700х2300
Масса, кг 2100
Количество контуров Одноконтурный
Размещение Напольный
Тип камеры сгорания Открытый
Управление Электронное
Принцип работы твердотопливного котла Классический
Энергонезависимый Нет
Тип питания Трехфазное
Встроенный циркуляционный насос Нет
Встроенный расширительный бак Нет
Энергоэффективность Высокая

Водогрейный жаротрубный котел КВр 0.4 на угле и дровах в Ижевске

Жаротрубный водогрейный котел КВр 0.4 Ижевск предназначен для получения горячей воды температурой не более 95 °С и давлением не более 0,3 МПа используемой в системах отопления, вентиляции и горячего водоснабжения, а также на технологические процессы в животноводстве, птицеводстве (тепловая обработка кормов, пастеризация молока и т. п.) и для других тепловых нужд в хозяйстве. Их используют также строительные организации, воинские части, прачечные, мясокомбинаты, консервные заводы, автоколонны, ДСУ, хлебозаводы, мелькомбинаты, маслосырзаводы, птицефабрики, свинокомплексы, в нефтегазовой промышленности, где требуется большой разбор горячей воды.

Мощность водогрейных жаротрубных котлов КВр 0.4 КБД - 0,4 МВт.

Жаротрубный водогрейный котел КВр 0.4 устройство

Конструкция жаротрубного водогрейного котла КВр 0.4 на угле обусловлена назначением – производство воды температурой до 95 градусов и давлением 0.3 МПа.

Водогрейный промышленный жаротрубный котел 0,4 КВр компактный, круглый, газоплотный, горизонтальной конструкции. Изготавливается из двух стальных цилиндров разного диаметра, вставленных один в другой и соединенных между собой фланцами. Внутренний цилиндр - труба жаровая - изготовлен из 5-ти мм стали, наружный цилиндр - барабан - изготовлен из 4-х мм стали для котлов.

К фронтовой стороне котла КВр 0.4 крепится фронтовая плита, имеющая дверку для загрузки топлива. Для управления и защиты котлоагрегата и вспомогательного оборудования предусмотрены автоматизация - пульт управления и контрольно-измерительные приборы, сигнализирующие об отклонении регулируемых параметров котлоагрегата и его неисправности. Физический принцип действия генератора основан на сжигании топлива в топке котла и дальнейшая передача тепловой энергии сгоревшего топлива при помощи теплообменника теплоносителю. Удаление продуктов сгорания происходит через сборную дымовую трубу.

На задней крышке агрегата в основании дымовой трубы выполнен предохранительный взрывной клапан. Образующиеся в топочной камере продукты сгорания проходят конвективный пучок труб и выводятся через трубу дымовую, установленную на корпусе в хвостовой части установки. При работе угольный жаротрубный водогрейный котел КВр 0.4 подпитывается водой через штуцер. Подпитка ведется из питательного бака насосом через соединительную арматуру. На трубопроводе подпитки агрегата водой должно быть установлено запорное устройство и обратный клапан. Запорное устройство располагается между котлоагрегатом и обратным клапаном.

На стороне нагнетания каждого центробежного насоса до запорного органа должен быть установлен обратный клапан. На трубопроводе, в непосредственной близости от твердотопливного жаротрубного котла КВр 0.4, устанавливается запорное устройство. На агрегате имеются продувочные штуцера Ду25, Ду15 и Ду10. Нижний штуцер Ду25 предназначен для удаления шлама, образующегося в результате работы установки, периодической продувки котловой воды и для спуска воды в случае необходимости.

На боковой части корпуса внизу имеется ревизия с крышкой, для периодического осмотра состояния поверхностей нагрева со стороны водяного объема. Производственный стальной стационарный котел КВр 0.4 водогрейный имеет систему для очистки наружних поверхностей нагрева от сажистых осаждений без его остановки. Обдувку и промывку конвективного пучка производят обдувочным аппаратом через лючки для обдувки, расположенные на задние стенки котлоагрегата, при минимальной нагрузке и максимальном давлении.

Благодаря оптимальной конструкции жаротрубный угольный котел КВр 0.4 работает на самотяге, дымосос не требуется.

Принцип работы водогрейных жаротрубных котлов КВр 0.4

В принцип работы жаротрубных котлов КВр 0.4 водогрейных заложен теплообмен между дымовыми газами и водой. Топливо сгорает в топочной части агрегата, окруженной водяной охлаждаемой рубашкой. Дымовые газы проходят через трубный пучок и выходят в верхней его части. Большой водяной объем котла позволяет проводить водоразбор подогретой воды и подпитку холодной водой из системы водопровода, при соблюдении требований к химическому составу питательной воды.

Комплектация котлов КВр 0.4 на угле

Цена на водогрейные жаротрубные котлы КВр 0,4 на твердом топливе включает полный комплект - манометры, указатели уровня с кранами, предохранительные клапаны, вентили. Насос подбирается в зависимости от гидравлической схемы котельной и поставляется отдельно.

Монтаж угольных водогрейных котлов КВ 0.4 КБД

Водогрейный жаротрубный котел КВр 0.4 на угле поставляется блоками максимальной заводской готовности. Котельный блок устанавливается в котельной на специально подготовленную ровную поверхность и закрепляется анкерными болтами. Аппарат подсоединяется по воде, устанавливается запорная арматура на подводящем трубопроводе, устанавливаются предохранительные клапаны и контрольно-измерительные приборы. Дымовая труба устанавливается на постамент сзади котлоагрегата. Подключается котельная автоматика. Типовые монтажные схемы вы можете изучить в разделе схемы подключения данного товара.

Для перевода водогрейного котла КВр 0.4 в паровой режим достаточно изменить схему подключения и установить другие предохранительные клапаны или купить на нашем заводе готовый комплект котел КВ 0.4 в паровом режиме.

Купить водогрейный жаротрубный котел КВр 0.4

Мы производим и поставляем промышленные жаротрубные водогрейные котлы КВр 0.4 на угле во все регионы России, Казахстана, Монголии, Таджикистана, Узбекистана, Белоруссии, Армении, Литвы, Киргизии, доставка может осуществляться транспортными компаниями, авто и железнодорожным транспортом. Оперативно рассчитаем стоимость котла КВр 0.4 с доставкой в Ижевске после получения вашего запроса. Для того чтобы купить котел КВр 0.4 в Ижевске, свяжитесь с отделом сбыта по телефону (38-52) 29-97-41 (42), либо оформите заявку онлайн. Наши менеджеры дадут консультацию по подбору вспомогательного оборудования для выбранных вами моделей и рассчитают стоимость доставки до вашего региона и населенного пункта. Также предлагаем вам выполнить проект реконструкции котельной.

Комплект поставки

Цена водогрейного жаротрубного котла КВр 0.4 включает в себя запорную арматуру и КИП в пределах котла, вентилятор поддува и предохранительные клапаны. Ниже приведена подробная информация.

Дополнительно потребуется

Для эффективной и надежной работы водогрейного жаротрубного котла КВр 0.4 вам потребуется дополнительное оборудование - автоматика, дымосос, золоуловитель, насос сетевой и подпиточный, газоходы и переходники для газового тракта, дымовая труба. Мы предлагаем рассмотреть типовые варианты комплектации.

В случае если у вас на объекте имеется насосное и тягодутьевое оборудование, мы можем проверить совместимость водогрейного жаротрубного котла КВр 0.4 нашего производства и вашего оборудования.

Можем изготовить нестандартные узлы для выполнения быстрого монтажа котла - газоходы и узлы обвязки.

Типовую схему монтажа котла вы можете посмотреть во вкладке схемы подключения.

Щит водогрейного котла обеспечивает:

  • ручной пуск котла;
  • ручное управление дутьевым вентилятором, дымососом и насосом;
  • автоматическое поддержание температуры путем управления вентилятором, подающим воздух для горения.

Щит водогрейного котла показывает:

  • температуру воды на выходе из котла;
  • температуру воды на входе в котел.

Щит водогрейного котла автоматическую остановку с индикацией причины аварии при:

  • понижении расхода теплоносителя через котел;
  • понижении и повышении давления на выходе из котла;
  • повышении температуры воды на выходе из котла;
  • понижении разряжения в топке котла.

Элементы для управления вентилятором устанавливаются в щите управления котлом.

Элементы управления дымососом и насосом устанавливаются в электросиловом щите котельной.

Цена 168 610 рублей с НДС

Используется в качестве сетевого насоса в промышленных отопительных котельных

Цена 57 410 рублей с НДС

Используется в качестве подпиточного насоса в промышленных отопительных котельных

Цена 48 110 рублей с НДС

Используется в качестве сетевого насоса в промышленных отопительных котельных

Цена 141 910 рублей с НДС

Схема подключения и монтаж

Смотреть
Скачать

Схема подключения парового котла КВ в водогрейном режиме

Сертификаты и гарантии

Гарантийный срок на котел КВр 0.4 КБД 24 месяца.

Сертификат на водогрейные котлы .jpg
Сертификат на водогрейные котлы
Знак товарный на водогрейные котлы HEATEXPERT .jpg
Товарный знак на водогрейные котлы HEATEXPERT

Отзывы о продукции

Отзыва о товаре пока нет, будьте первыми!

Видео обзор

Водогрейные жаротрубные котлы КВр 0.4 предназначены для получения горячей воды температурой не более 95 °С и давлением не более 0.3 МПа используемой в системах отопления, вентиляции и горячего водоснабжения.

Смотреть видеообзор на
Подобрать котел по мощности
Подберите необходимую мощность котла для вашего объекта
Тип здания
Регион
Населенный пункт
Вид топлива
Наружный объем здания (м3)
Отапливаемый подвал

Как подобрать мощность котла для вашего объекта

Подобрать мощность котла по площади важно учитывая не только площадь и объем здания, но и тип зданий и климатические данные региона.

На нашем сайте калькулятор расчета мощности котла учитывает тепло, требуемое на возмещение тепловых потерь через строительные конструкции и потери, вызываемые инфильтрацией (проникновением) наружного воздуха, через их неплотности и периодически открываемые двери.

Наружный строительный объем здания должен определяться умножением площади горизонтального сечения, взятого по внешнему обводу здания на уровне первого этажа на полную высоту здания, измеренную для панельных зданий: от уровня чистого пола (нулевой отметки) до верхней плоскости теплоизоляционного слоя чердачного покрытия, для остальных строений от уровня земли.

Расчетная температура воздуха в отапливаемых зданий принимается в зависимости от типа и назначения здания:

  • Гостиница, общежитие, административное здание, жилые дома + 20 °С;
  • Детские сады, ясли, поликлиники, амбулатории, диспансеры, больницы + 22 °С;
  • Высшие и средние специальные учебные заведения, общеобразовательные школы, школы интернаты, лаборатории, предприятия общественного питания, клубы, дома культуры + 16 °С;
  • Театры, магазины, пожарные депо + 15 °С;
  • Кинотеатры + 14 °С;
  • Гаражи + 10 °С;
  • Бани + 25 °С.

В случае если требуется отопление различных по типу зданий, теплопотребление каждого считается отдельно, полученные значения складываются и подобрать мощность котла нужно в соответствии с общей суммарной мощностью каждого отдельно стоящего задания.

Климатические условия вашего региона принимаются в соответствии с СП 131.13330 Строительная климатология. Данные по всем регионам России занесены в наш калькулятор расчета мощности котла.

Подобрать мощность котла по площади с учетом потребностей объекта в тепле на вентиляцию и горячую воду возможно только с более детальным расчетом. Его вы можете заказать в отделе сбыта котельного завода отправив заявку на электронный адрес sb@kvzr.ru или позвонив по телефонам (38-52) 29-97-41, 29-97-42.

Вопрос ответ

Не ввел котельную в эксплуатацию. Что мне за это будет?

Ответственность за отсутствие разрешения на допуск котельной в эксплуатацию

Надзор за соблюдением требований ПТЭТЭ в организациях независимо от форм собственности и ведомственной принадлежности осуществляют органы государственного энергетического надзора. п 1.6. ПТЭТЭ. За несоблюдение ПТЭТЭ Ростехнадзор привлекает организации к ответсвенности по следующим статьям КоАП:

КоАП РФ Статья 9.9. Ввод в эксплуатацию топливо- и энергопотребляющих объектов без разрешения соответствующих органов осуществляющих государственный надзор на указанных объектах,

  • влечет наложение административного штрафа на должностных лиц в размере от одной тысячи до двух тысяч рублей;
  • на лиц, осуществляющих предпринимательскую деятельность без образования юридического лица, - от одной тысячи до двух тысяч рублей или административное приостановление деятельности на срок до девяноста суток;
  • на юридических лиц - от десяти тысяч до двадцати тысяч рублей или административное приостановление деятельности на срок до девяноста суток.

Также есть еще Статья 9.11. КоАП РФ, которая предусматривает аналогичную ответственность за несоблюдение ПТЭТЭ во время эксплуатации.

Статья 9.11. Нарушение правил пользования топливом и энергией, правил устройства, эксплуатации топливо- и энергопотребляющих установок, тепловых сетей, объектов хранения, содержания, реализации и транспортировки энергоносителей, топлива и продуктов его переработки

  • влечет наложение административного штрафа на граждан в размере от одной тысячи до двух тысяч рублей;
  • на должностных лиц - от двух тысяч до четырех тысяч рублей;
  • на лиц, осуществляющих предпринимательскую деятельность без образования юридического лица, - от двух тысяч до четырех тысяч рублей или административное приостановление деятельности на срок до девяноста суток;
  • на юридических лиц - от двадцати тысяч до сорока тысяч рублей или административное приостановление деятельности на срок до девяноста суток.

Какие котельные требуют допуск РТН в эксплуатацию:

Водогрейные и паровые котельные, в том числе блочно модульные котельные установки эксплуатируются в соответствии с "Правилами технической эксплуатации тепловых энергоустановок" Утвержденными приказом №115 от 24 марта 2003 г. (Далее ПТЭТЭ)

ПТЭТЭ распространяются на:

  • производственные, производственно-отопительные и отопительные котельные с абсолютным давлением пара не более 4,0 МПа и с температурой воды не более 200 град. С на всех видах органического топлива, а также с использованием нетрадиционных возобновляемых энергетических ресурсов;
  • паровые и водяные тепловых сетей всех назначений, включая насосные станции, системы сбора и возврата конденсата, и других сетевых сооружений;
  • системы теплопотребления всех назначений (технологических, отопительных, вентиляционных, горячего водоснабжения, кондиционирования воздуха, теплопотребляющих агрегатов, тепловых сетей потребителей, тепловых пунктов, других сооружений аналогичного назначения.

Приемка и допуск в эксплуатацию котельных:

Согласно ПТЭТЭ:

2.4.1. Новые или реконструированные тепловые энергоустановки принимаются в эксплуатацию в порядке, установленном ПТЭТЭ.

2.4.11. Включение в работу тепловых энергоустановок производится после их допуска в эксплуатацию.

2.4.2. Допуск в эксплуатацию новых и реконструированных тепловых энергоустановок осуществляют органы государственного энергетического надзора на основании действующих нормативно-технических документов.

Таким образом, исходя из приведенных норм, запрещается производить подключение объектов к сетям инженерно-технического обеспечения и осуществлять подачу коммунальных ресурсов без допуска в эксплуатацию тепловых энергоустановок органами энергетического надзора.

Порядок организации работ по выдаче разрешений на допуск в эксплуатацию энергоустановок и тепловых сетей (далее – Порядок) установлен приказом Федеральной службы по экологическому, технологическому и атомному надзору от 7 апреля 2008 г. № 212, зарегистрирован в Минюсте РФ 28 апреля 2008 г. № 11597 (РД 12-08-2008).

Вышеперечисленный документ не содержат требований о минимальной или максимальной нагрузке теплового пункта, при которой необходимо получать разрешение на допуск в эксплуатацию, соответственно необходимо получать разрешение на допуск в эксплуатацию новых или реконструированных тепловых энергоустановок, вне зависимости от их тепловой нагрузки.

Как проводится гидравлическое испытание котла

Гидравлические испытания водогрейного котла

1.1. Гидравлическому испытанию подлежат все новые или реконструированные тепловые энергоустановки после завершения монтажных работ.

1.2. Опрессовка и гидравлическое испытание котлов проводится давлением не менее 1,25 Рраб.

1.3. Опрессовка и гидравлическое испытание котлов проводиться водой температурой не ниже 5 ⁰С и не выше 40 ⁰С. Применение холодной воды (5-15 ⁰С) для испытаний может вызывать выпадения влаги на поверхностях объекта испытаний. Применение воды температуры выше 40 ⁰С может быть травмоопасно. Используемая для гидравлического испытания вода не должна загрязнять объект или вызывать интенсивную коррозию.

1.4. Проведение гидравлических испытаний котлов на плотность проводятся в следующем порядке:

  • Заполнить водой теплосети котельной и котел.
  • Спустить воздух системы теплосетей и котла через воздушники, установленные в верхних точках.
  • Котел отключить от действующих теплосетей, закрыв запорную арматуру или установить заглушку на прямом и обратном трубопроводе теплосети.

  • Установить пробное давление: включить циркуляционный и подпиточный насосы. Давление следует поднимать равномерно до достижения пробного. Общее время подъема давления должно быть не менее 10 мин.
  • Время выдержки под пробным давлением должно быть не менее 10 мин.
  • После выдержки под пробным давлением давление снижают до рабочего.

Давление воды при испытании контролируется по манометрам, установленными на подводящем и отводящем трубопроводах котла согласно приложению А.

1.5. Контролируемые параметры при гидравлических испытаниях:

  • Показания манометров. Падения давления не допускается в течении выдержки пробным давлениям;

В случае выявления падения давления согласно показаниям манометров, проводиться визуальный контроль.

  • Визуальный контроль. После снижения давления до рабочего не допускается видимых остаточных деформаций, трещин или признаков разрыва, течи в сварных и разъемных соединениях и в основном металле.

Манометры и показывающие приборы, должны быть установлены согласно схеме.

Акт гидравлического испытания котлов образец

«___» ________ 20___ г.
Начальник производствафамилия, инициалы
Мастер сменыфамилия, инициалы
Работник, проводивший испытанияфамилия, инициалы
Произвели осмотр и проверку качества сборкинаименование изделия, заводской номер
и составили акт о нижеследующем:
1. Сборканаименование изделия, вид проектной, технологической документации
2. В процессе сборки внесены следующие отступления от технической документацииперечень отступлений
согласованныедолжность, фамилия, инициалы
3. Котел испытан гидростатическим методом пробным давлением_____МПа (_____кгс/см2) в течении _______мин.
4. В течение времени нахождения под пробным давлением падение давлениянаблюдалось или не наблюдалось
5. В течение времени нахождения под максимальным рабочим давлением ___МПа (___кгс/см2)отсутствие или наличие дефектов
Принято решение:
Котел (признается или не признается) выдержавшим испытание гидростатическим методом.
Начальник производствафамилия, инициалы, подпись
Мастер сменыфамилия, инициалы, подпись
Работник, проводивший испытанияфамилия, инициалы, подпись

Акт гидравлического испытания котлов образец (скачать в Word)

Акт гидравлического испытания котлов образец (скачать в pdf)

  • Технические
    характеристики
  • Описание
    товара
  • Комплект
    поставки
  • Дополнительно
    потребуется
  • Подключение и монтаж
  • Доп
    услуги
  • Сертификаты и
    гарантии
  • Отзывы о
    продукции
  • Видео
    обзор
  • Подбор
    котла
  • Вопрос
    ответ
Документы завода
  • Сертификаты завода
  • Членство в СРО
  • Аттестованная технология сварки
  • Патенты на котельное оборудование
  • Товарные знаки
Смотреть все документы
Сертификат на водогрейные котлы на твердом и жидком топливе
Сертификат на водогрейные котлы на газе и жидком топливе
Сертификат на котлы отопительные паровые КП
Сертификат на топки
Сертификат на щиты управления
Сертификат на скиповые подъемники
Сертификат на золоуловители (циклоны)
Сертификат на конвейеры скребковые
Сертификат на дробилки
Сертификат на клапаны предохранительные
Сертификат на бункер-накопитель механизированный
Сертификат на автоматику газовых горелок
Членство в СРО
Членство в СРО
Аттестованная технология сварки
Свидетельство аттестованной технологии сварки
Патент на отопительный котел
Патент на водогрейный котел
Патент на топку водогрейного котла
Патент на водогрейный газовый котел
Патент на водогрейный котел
Патент на топочное устройство твердотопливного котла
Патент на водогрейный котел
HEATEXPERT товарный знак
KVZR товарный знак
STEAMEXPERT товарный знак
Другая похожая продукция
Котел КПр 500
Лизинг
Производительность, кг/ч500
ТопливоТвердое, Уголь
Температура пара, не более, °C170
Давление пара, не более, МПа0.9
1 121 000 р. Цена с НДС
Котел КПр 500
Лизинг
Производительность, кг/ч500
ТопливоТвердое, Уголь
Температура пара, не более, °C110, 115
Давление пара, не более, МПа0.07
820 000 р. Цена с НДС
Паровой котел КП 500 на дровах
Лизинг
Производительность, кг/ч500
ТопливоТвердое, Дрова
Температура пара, не более, °C115
Давление пара, не более, МПа0.07
820 000 р. Цена с НДС
Котел КПа 500
Лизинг
Производительность, кг/ч500
ТопливоГаз
Температура пара, не более, °C115
Давление пара, не более, МПа0.07
652 000 р. Цена с НДС
Котел КПа 500
Лизинг
Производительность, кг/ч500
ТопливоЖидкое, Дизель
Температура пара, не более, °C115
Давление пара, не более, МПа0.07
652 000 р. Цена с НДС
Водогрейный жаротрубный котел КВр 0.5
Лизинг
Вид топкиРучная, Колосниковая
Максимальная тепловая мощность, МВт0.5
ТопливоТвердое, Уголь
990 000 р. Цена с НДС
Вы просматривали эти товары
Водогрейный жаротрубный котел КВр 0.4
Лизинг
Вид топкиРучная, Колосниковая
Максимальная тепловая мощность, МВт0.4
ТопливоТвердое, Уголь
880 000 р. Цена с НДС
Цена по запросу
Цена по запросу
Котел 500 кВт без дымососа
Вид топкиКолосники
Максимальная тепловая мощность, кВт580
ТопливоУголь
Отапливаемая площадь, м²4500-6400
664 000 р. Цена с НДС
background