Транспортер СКИП 600 предназначен для подъема насыпных грузов в наклонном и вертикальном направлениях в ковше (скипе). Транспортер СКИП 600 должен быть изготовлен в климатическом исполнении УХЛ1 по ГОСТ 15150.
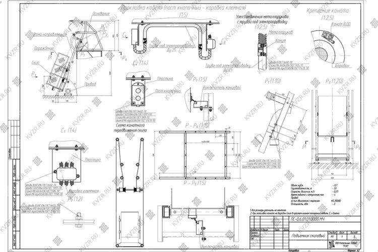
Транспортер СКИП 600 представляет собой устройство, собранное последовательно основание – опорной рамы предназначено для передачи нагрузки от веса подъемника и поднимаемого груза на опорную поверхность, направляющей – рамы с полозьями для движения в них ковша (скипа), скипа – ковша для загрузки в него и подъема в нем сыпучего материала, ограждений для ограничения доступа к движущимся элементам подъемника, привода – силового агрегата с тормозом осуществляющего перемещение ковша по направляющей с помощью канатной тяги, в крайних положениях ковша устанавливаются концевые выключатели для ограничения перемещения ковша и автоматизации приема крайних положений в ходе рабочего цикла.
Конструкцией подъемников должно обеспечиваться удобство обслуживания, регулирования узлов, а так же проведение ремонтных работ.
В комплект поставки транспортера СКИП 600 должны входить:
Поставка транспортера СКИП 600 производится в разобранном виде.
СКИП 600 транспортируют транспортом всех видов в соответствии с правилами перевозки грузов, действующими на транспорте данного вида.
Монтаж, эксплуатация и техническое обслуживание подъемника должно осуществляться в соответствии с "Техническим описанием, инструкцией по монтажу, эксплуатации и обслуживанию" предприятия-изготовителя, настоящими техническими условиями, а также "Инструкцией для персонала предприятия".
Наша организация осуществляет проектирование транспортеров в соответствии с техническим заданием Заказчика.
Для того чтобы купить транспортер СКИП 600 в Ижевске, вы можете сделать заявку в отдел сбыта по телефону (38-52) 29-97-41 (42), либо оформить заявку онлайн. Наши менеджеры дадут консультацию по подбору вспомогательного оборудования для выбранных вами моделей и рассчитают стоимость доставки до вашего региона и населенного пункта.
 
Отзыва о товаре пока нет, будьте первыми!
Транспортеры СКИП применяются для перемещения угля в вертикальном и круто наклонном положении, с места хранения угля в бункер водогрейного котла, в стационарных котельных, модульных котельных МКУ и транспортабельных котельных КМТ.
