Скребковый цепной транспортер удаления золы и шлака из под котлов за пределы котельной.
Золоудаление скребковое предназначено для перемещения золы и шлака при помощи движущихся скребков по неподвижному желобу в бункер золы и шлака или отвал. Золоудаление скребковое применяется в механизированных котельных с паровыми и водогрейными котлами.
Котельный завод "РОСЭНЕРГОПРОМ" производит золоудаление марки УСШ - устройство скребковое шлакоудаления производительностью от 0,5 до 10 т/ч, длиной до 50 метров, являющееся аналогом транспортера скребкового ТС 2-30 и ТC 2-28, а также установки УСШ-5, но ввиду усовершенствованной и оптимизированной конструкции имеющие более низкую стоимость. В случае необходимости установки шлакоудаления скребкового длиной более 50 метров применяют пересыпные транспортеры шлакоудаления.
Золоудаление скребковое, разрабатывается индивидуально в соответствии с техническим заданием и заполненным опросным листом, отличается длиной и количеством поворотных секций.
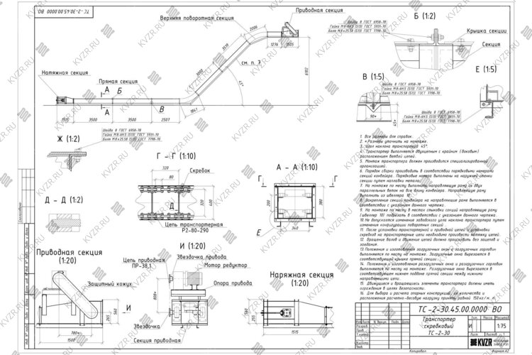
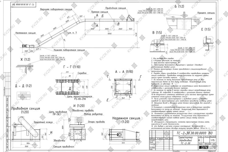
Золошлакоудаление скребковое состоит из привода, натяжной, приводной, прямолинейных секций, поворотных секций, скребковой цепи. Путем изменения количества прямолинейных секций и применением поворотных секций транспортера шлакозолоудаления имеется возможность создавать различную траекторию с углом перегиба 30 °. Привод цепной состоит из одного электродвигателя и редуктора. Натяжная секция состоит из рамы, вала со звездочками, подшипниковых узлов в подвижных корпусах.
Приводная секция состоит из рамы, вала приводного со звездочкой, подшипниковых узлов в неподвижных корпусах. Прямолинейная секция представляет собой короб с направляющими для цепей. Поворотная секция изогнута на 36 °. Скребковая цепь шлакоудаления состоит из двух тяговых разборных цепей, с закрепленными между ними скребками. Для удобства обслуживания, очистки коробов, регулирования узлов, а так же проведения ремонтных работ секции шлакоудаления имеют полностью съемную крышку.
Шлакоудаление скребковое поставляется секциями, общая сборка транспортера шлакоудаления производится на месте монтажа и выполняется в соответствии с проектом и инструкцией по монтажу и сборке. Собирается скребковое шлакоудаление в следующей последовательности: собрать секции конвейера, прямые секции и натяжную секции, соединить горизонтальную и наклонную части при помощи поворотной секции, установить цепь со скребками в собранные секции, подключить привод.
Система золошлакоудаления имеет три варианта исполнения, в зависимости от схемы котельной:
Золоудаление серии УСШ поставляется следующими узлами:
В котельных с механизированным золошлакоудалением, применяются бункеры золы и шлака. Бункер золы и шлака, объем и его конструкция рассчитывается в зависимости от производительности котлов и схемы котельной. Объем бункера шлака и золы от 1 до 7 м3. Комплектация бункера золы и шлака может быть как с каркасно-опорной конструкцией, так и без нее, согласно технического задания.
Системы золошлакоудаления транспортируются автотранспортом и ж/д контейнерами. Для оценки стоимости доставки пришлите заявку и мы оперативно проведем расчет стоимости доставки до вашего города или населенного пункта. Для вашего удобства предлагаем оформить заявку и уточнить интересующую вас информацию онлайн.
 
Отзыва о товаре пока нет, будьте первыми!
Золоуловитель ЗУ представляет собой горизонтальный циклон, предназначенный очистки газов от летучей золы с температурой до 290 °С. Применяется для улавливания золы после водогрейных котлов КВр. Является аналогом золоуловителя ЗУ-2-1, ЗУ-2-2.
