Циклоны ЦН 15 900 6УП используются для очистки аспирационного воздуха, а также для сухой очистки газов и воздуха, выделяющихся при некоторых процессах производства (обжиг, агломерация, сушка, сжигание топлива и т.д.). Пылеуловитель применяется: на предприятиях черной и цветной металлургии, в химической, нефтяной, машиностроительной промышленности, а также пылеуловитель эффективен на предприятиях энергетики, при производстве строительных материалов и т.д.
Циклоны типа ЦН 900х6УП являются самым простым видом пылеуловителей. Важно отметить, что циклоны могут использоваться для безотходного производства, так как некоторые виды пыли, что собраны этим пылеуловителем возможно подвергнуть переработке.
Применение циклонов ЦН-15-900-6УП НИИОГАЗ не разрешено во взрывоопасных средах; не рекомендуется их применять также для улавливания больших частиц пыли, особенно при небольших диаметрах циклонов. Степень очистки газов с помощью пылеуловителя во многом зависит от размера частиц пыли, чем больше их размеры, тем эффективней очистка.
Групповые циклоны ЦН 15 900х6УП пылеуловители изготавливаются с камерой очищенного воздуха в виде "улитки". В групповом исполнении аппарат способен обеспечить очистку больших объемов газов.
Циклон группового исполнения производят с вращением потока газов "левого" или "правого" типа, одиночные циклоны существуют только с вращением "правого" типа.
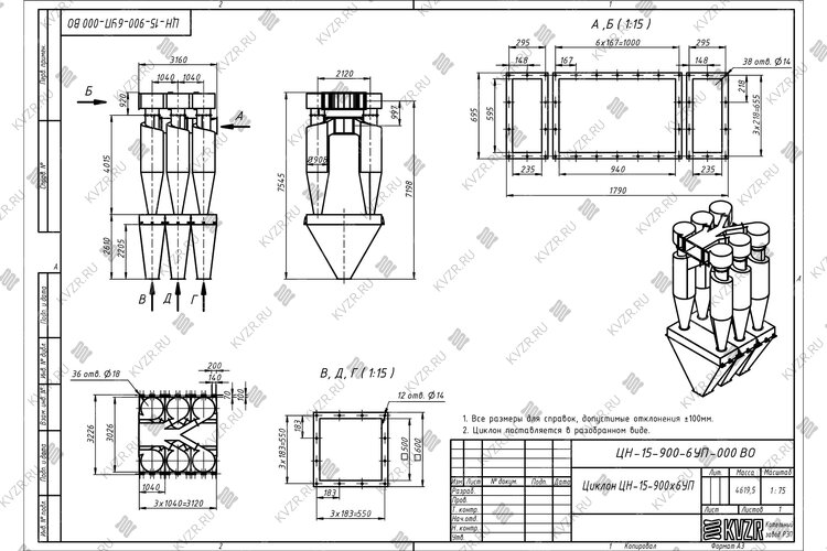
Бункер циклона ЦН 15 900 6УП делается в форме пирамиды.
В технической характеристике представлены значения производительности циклона золоуловителя ЦН 15 900 6УП, относящиеся к скорости в цилиндрической части циклона (скорость составляет 2,5 и 4,0 м/с). В обычных условиях нормальной считается скорость 4,0 м/с. Скорость 2,5 м/с лучше всего принимать при работе с абразивной пылью.
В зависимости от температуры вокруг циклона, оборудование производится из углеродистой стали (температура менее -40 °С) и низколегированной стали (при температуре ниже -40 °С).
Конфигурация циклона рассчитана на температуру до 400 °С и разряжение (относится к давлению) 5(500) кПа (кгс/м2). Циклоны делаются как левого, так и правого исполнения. Они могут закрепляться как на нагнетании, так и на всасывающей линии вентилятора. При фильтрации воздуха от абразивной пыли, которая вызывает износ крыльчаток вентилятора, циклоны рекомендуется устанавливать перед вентилятором. В группе циклонов ЦН 15 900х6УП патрубки с выходом очищенного воздуха могут быть соединены сборным коробом с группой улиток каждого циклона, объединенных общим фланцем.
Аспирация циклон ЦН 15 900 6УП изготавливается согласно ГОСТ Р 51708-2001.
Выделение частиц из воздушной (газовой) среды происходит в основном под воздействием центробежной силы, возникающей при вращении воздушного потока в корпусе батарейного циклона ЦН 15 900х6УП. Запыленный воздух входит в циклон через тангенциальный патрубок и, приобретая вращательное движение, опускается винтообразно вниз вдоль внутренних стенок цилиндра и конуса. Небольшая часть этого потока, в котором сконцентрированы пылевые частицы, движется в непосредственной близости от стенок циклона и поступает через пылеотводящее отверстие в пылесборный бункер, где происходит осаждение и накопление пылевых частиц.
Под пылесборным бункером установлен пылевой затвор. Пылевой затвор служит для периодической или непрерывной разгрузки уловленной пыли из пылесборного бункера.
В центральной зоне циклона воздушный поток, освобожденный от пыли, поднимается винтообразно вверх и удаляется через выхлопную трубу наружу. На выходе выхлопной трубы или группы выхлопных труб в групповом циклоне ЦН 15 900 6УП установлена камера для сбора и перенаправления потока очищенной воздушной (газовой) среды в виде улитки. Улитка позволяет снизить выходное сопротивление золоуловителя.
Для увеличения срока эксплуатации батарейные циклоны ЦН 15х900х6УП, которые подвергаются абразивному износу, в местах наибольшего износа (во входной и в нижней части корпуса) необходимо приваривать дополнительные листы с наружной стороны стенок циклонов. Циклоны диаметром меньше 800 мм по причине повышенного износа не рекомендуется применять для улавливания абразивной пыли.
При использовании группы циклонов пылевых ЦН 15 900х6УП должна быть гарантирована непрерывная выгрузка уловленной пыли. При этом уровень пыли в бункерах не должен превышать уровень плоскости, которая отстоит от крышки бункера на 0,5 диаметра циклона.
Ц - обозначение циклона
Н - обозначение конструкции НИИОгаза
15 - наклон входного патрубка относительно горизонтали (угол наклона в градусах)
900 - обозначается внутренний диаметр цилиндрической части циклона (в мм.);
2 - количество циклонов в группе
У - камера очищенного газа - "улитка"
П - пирамидальная форма бункера
для слабослипающихся пылей не более 1000
для среднеслипающихся пылей 250
с "улиткой" - 175;
для одиночных циклонов - 147.
| Наименование | L | B | H | H1 | H2 | H3 | D | D1 | E | 
| Циклон ЦН 15-900-6УП | 2860 | 2860 | 7360 | 4158 | 4872 | 2160 | 900 | 530 | 2700 | 
| Наименование | F | a | b | L1 | L2 | B | B1 | Масса, кг | 
| Циклон ЦН 15-900-6УП | 2800 | 1624 | 604 | 1580 | 980 | 300 | 440 | 5660 | 
Монтаж аппарата циклона ЦН 15 900 6УП производится согласно проектной документации, необходимо обеспечить беспрепятственный подход к золосливному отверстию пылесборного бункера. При монтаже подводящего газового тракта не допускается резких перегибов газоходов, резких сужений или расширений, что ведет к существенным искажениям пылегазового потока, образованию завалов и потерям давления. Отводящие газоходы приварить к боковым стенкам циклона пылеуловителя ЦН 15 900х6УП с центрированием по выходным отверстиям.
Подводящие и отводящие газоходы не должны передавать нагрузок на фланцы циклона.
Завод изготовитель циклонов предлагает купить циклон ЦН 15 900 6УП в Ижевске, для этого вы можете сделать заявку в отдел сбыта по телефону (38-52) 29-97-41 (42), либо оформить заказ онлайн. Наши менеджеры дадут консультацию и рассчитают стоимость доставки до вашего региона и населенного пункта.
 
Отзыва о товаре пока нет, будьте первыми!
Циклоны являются наиболее распространенным газоочистным оборудованием. Циклон производит очистку газов в самых различных отраслях промышленности: в черной и цветной металлургии, химической и нефтяной промышленности, промышленности строительных материалов, энергетике и других. При небольших капитальных затратах и эксплуатационных расходах, циклоны в зависимости от характеристик улавливаемой пыли, типа и режима работы обеспечивают эффективность очистки газов и пылеулавливания 80-95 %.
