Угольный барабанный паровой котел Е 1/9Р в Ижевске

Версия
для печати
В наличии на складе Цена в рублях с НДС 1 815 000
Получите скидку
у менеджера
Цена на угольный барабанный паровой котел Е 1/9Р с доставкой от 1 845 000 рублей с НДС
Производительность, кг/ч1000
ТопливоТвердое, Уголь
Температура пара, не более, °C170
Давление пара, не более, МПа0.9
Доставка ТК в г. Ижевск и по России
Безналичный расчет
Опросный лист
Эту продукцию можно
купить в лизинг
  • Технические
    характеристики
  • Описание
    товара
  • Комплект
    поставки
  • Дополнительно
    потребуется
  • Схема
    подключения и монтаж
  • Доп
    услуги
  • Сертификаты и
    гарантии
  • Отзывы о
    продукции
  • Видео
    обзор
  • Вопрос
    ответ

Технические характеристики

  • Барабанный водотрубный паровой котел
  • Компактная модель удобно размещается в маленьких помещениях котельных
  • Топка выполнена из поворотных колосников и легко очищается от шлака
  • Трубная часть имеет встроенную систему очистки от сажи без остановки котла
  • В комплект поставки входит вентилятор, комплект запорной арматуры и КИП
  • Дополнительно приобретаются автоматика, газоходы, дымовая труба и дымосос Д 3,5
  • Температура пара до 170 °С
Технические характеристики парового котла Е 1 9Р
Тип Паровой котел Е
Марка Паровой котел Е 1/9
Вид топки Ручная, Колосники
Конструкция котла Барабанный
Производительность, кг/ч 1000
Производительность, т/ч 1
Максимальная тепловая мощность, МВт 0.74
Максимальная тепловая мощность, кВт 740
Максимальная тепловая мощность, Гкал 0.64
Диапазон регулирования мощности, % 40-100
Топливо Твердое, Уголь
Низшая теплота сгорания проектного топлива, кКал/кг 5230
КПД котла на УГЛЕ, не менее, % 78
Расход УГЛЯ при максимальной нагрузке котла, кг/ч 150
Расход условного топлива, кг/ч 112
Температура пара, не более, °C 170
Давление пара, не более, МПа 0.9
Давление пара, не более, (кгс/см²) 9
Давление пара, не более, бар 9
Полный объем котла, м³ 1.46
Объем паровой части, м³ 0.16
Аэродинамическое сопротивление, Па (мм. вод. ст.) 300 (30)
Разряжение в топочной камере, Па (мм. вод. ст.) 20-40(2-4)
Объем уходящих газов, м³/ч 3185
Температура уходящих газов, °С 280
Тяга Принудительная
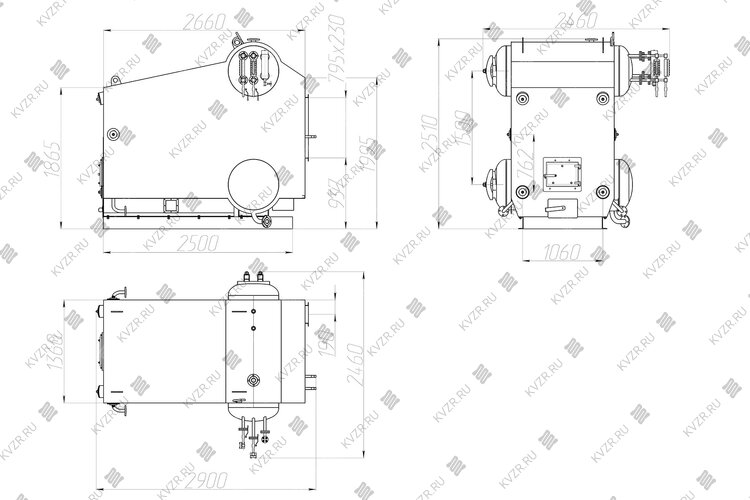
Размер топочной камеры, длина*ширина*высота, мм 1320х1060х1430
Активная площадь решетки горения, м² 1.4
Объем топочной камеры, м³ 2
Присоединительные размеры газохода уходящих газов, ширина*высота / сечение, мм/м² 795х230/0,18
Температура питательной воды, не менее, °C 50
Присоединительные размеры выхода пара, Ду 50
Присоединительные размеры по водяному тракту, Ду 32
Габаритные размеры котла, длина*ширина*высота, мм 2900*2460*2510
Масса, кг 3700
Энергоэффективность Высокая
Бренд STEAMEXPERT

Котел Е 1 9Р паровой на угле – технические характеристики:

  • паропроизводительность 1 т пара в час;
  • максимальная температура пара 170 градусов;
  • давление пара 0.9 МПа, 9 кгс/см2;
  • тепловая мощность 0.74 МВт, 740 КВт;
  • топливо – каменный и бурый уголь;
  • тип котла барабанный.

Цена на паровой котел Е 1-9 Р угольный зависит от комплектации. Обратите внимание на комплектацию нашего завода!

Наш котельный завод также производит паровые котлы производительностью 1000 кг/ч с другими давлениями и температурой.

Комплект поставки котла нашего производства:

  • Котельный блок - 1 шт;
  • Предохранительный клапан 17с28нж Ду 50 - 2 шт;
  • Вентилятор ВЦ 14-46 №2,5 с дв. 0,55/1500 - 1 шт;
  • Вентиль 15Б1П Ду 25 Ру 16 - 1 шт;
  • Указатель уровня 12кч11бк №6 - 2 шт;
  • Запорное устройство указателя уровня 12б2бк Ду 20 - 2 шт;
  • Вентиль чугунный фланцевый 15кч16п1 Д50 Ру25 - 1 шт;
  • Клапан обратный муфтовый Ду 20 - 1 шт;
  • Клапан запорный фланцевый Ду 32 Ру 25 - 1 шт;
  • Кран трехходовой 11б38бк2 Ду 15 (под манометр, пар) - 2 шт;
  • Манометр ДМ2005Сг - 1 шт;
  • Манометр МП100 - 1 шт;
  • Трубка сифонная (Перкинса) прямая - 2 шт.

Дополнительно для подключения угольного котла Е 1/9 Р вам потребуются

  • Насос питательный CR 1-23 A-A-A-E-HQQE - 2 шт;
  • Щит управления котлом - 1 шт;
  • Водоподготовка (подбирается на основании технического анализа воды).
  • Дымосос ДН 3,5 с двигателем 3.0 кВт при работе без золоуловителя;
  • Дымосос ДН 6.3 с двигателем 5.5 кВт при работе с золоуловителем;
  • Золоуловитель ЗУ-0.8 (по желанию).

Котел Е1 9 Р на твердом топливе технические характеристики и устройство

Технические характеристики для модели паровой котел Е 1-9 Р серии Е - стальной двухбарабанный вертикальный водотрубный с естественной циркуляцией с экранированной топочной камерой и конвективным пучком, с ручной топкой паропроизводительностью 1 тонна пара в час с абсолютным давлением пара до 0,9 МПа (9,0 кгс/см2) и температурой на выходе до 170 С, может работать на твердом топливе - каменный и бурый уголь. Устанавливается в производственных котельных для выработки технологического пара, работает с принудительной подачей питательной воды.

Котел типа Е 1/9 Р твердотопливный паровой имеет устройство из основных узлов - система трубная с барабанами, топка, трубная теплоизоляция с каркасом и обшивкой, система питания, система управления, тяговое устройство.

Трубная система, выполненная в газоплотном исполнении с применением в качестве радиационной поверхности топки цельносварных экранов. Верхний и нижний барабаны, соединены между собой пучком труб, образующих конвективную поверхность нагрева. Боковые топочные экраны, включены в циркуляционный контур агрегата через боковые коллекторы, которые вварены в барабаны, а также потолочный экран, вваренный в верхний барабан и поперечный фронтовой коллектор, сообщающийся с нижними коллекторами.

Для очистки и осмотра коллекторов на их торцевой части имеются лючки. Доступ во внутреннюю часть барабанов и к трубам конвективного пучка возможен благодаря люкам барабанов. В качестве лаза для осмотра внутренних поверхностей топки используется дверка для шурования угля. Трубы конвективного пучка разделены перегородкой из жаростойкой стали, которая меняет направление потока газа и улучшают условия теплообмена. На нижнем барабане и нижних коллекторах боковых экранов имеются продувочные штуцеры.

На днище верхнего барабана размещены патрубки водоуказательной арматуры и уровнемерной колонки. Датчиком уровня воды в котлоагрегате служит уровнемерная колонка применяемая в качестве первичного прибора по регулированию уровня и защиты котла.

В верхней части обечайки верхнего барабана установлены штуцера для крепления пружинных предохранительных клапанов, главный пароотводящий штуцер, трубка крепления манометра, труба подвода питательной воды, внутри верхнего барабана смонтированы сепарационное устройство и труба ввода питательной воды.

Трубная система собрана на общей раме.

Обмуровка выполнена минераловатными матами, уложенными на штыри, приваренные к мембранам трубной системы. Для крепления теплоизоляции, а также листов декоративной обшивки, на теплоагрегате устанавливается сварной каркас, изготовленный из уголка. Фронт аппарата от колосников до уровня поперечного коллектора залит огнеупорным бетоном. Наружная декоративная обшивка, изготовленная из тонколистовой стали, предохраняет теплоизоляцию от разрушения и придает эстетический вид.

Система питания предназначена для заполнения агрегата водой и подпитки его во время работы.

Система управления предназначена для автоматического управления и защиты установки.

Подача питательной воды производится питательным насосом. В соответствии с ГОСТ для паровых котлов должно быть установлено два насоса, рабочий и резервный. Дренажи и воздушники производят дренирование трубной системы от шлама и удаление скапливающего воздуха.

За котлоагрегатом устанавливаются 2 предохранительных клапана марки 17с28нж.

Котел Е 1/9 Р угольный принцип работы

Топливо сгорает в топке. Для обеспечения нормальной работы агрегата необходимо непрерывно подавать в топку к горячему топливу воздух обеспечивать определенную скорость движения горячих газов по газоходам и удалять из агрегата в атмосферу продукты горения.

Движение воздуха и продуктов горения в котлоагрегате осуществляется при помощи тягодутьевых устройств, включающих в себя дымосос и дутьевой вентилятор.

При сжигании топлива в топке образуются дымовые газы высокой температуры. Эти газы проходят по газоходам агрегата, омывая пучки труб, по которым движется (циркулирует) вода. В результате газы отдают воде часть своей теплоты и охлаждаются, а вода нагревается и превращается в пар, собирается в верхнем барабане аппарата. Воздух в топку подается вентилятором через зазоры в колосниках. Охлажденные дымовые газы с помощью дымососа через дымоходы и дымовую трубу удаляются в атмосферу. Горячие газы омывают трубную систему, нагревают воду и производят насыщенный пар температурой до 170 градусов. При необходимости котел Е 1 9Р может производить пар меньшей температуры.

Зависимость температуры пара от давления:

Температура пара, С°115120130140150160165170
Давление пара, МПа0.070.10.170.260.380.520.60.7

Котлоагрегат должен работать с автоматикой. Заводская автоматика ограничивает предельно допустимые параметры работы и давление пара, управляет вентилятором и подпиточным насосом и регулирует уровень воды в барабане.

Температура сухого насыщенного пара в парогенераторе регулируется изменением давления пара, при необходимости снижения температуры необходимо выставить соответствующее давление пара на электроконтактный манометр по приведенной выше таблице соответствия давления и температуры.

Автоматика по заданному давлению производит управление дутьевым вентилятором и, следовательно, интенсивностью горения.

Вода подготавливается в соответствии с требованиями руководства по эксплуатации, «Правилам технической эксплуатации тепловых энергоустановок» и ГОСТ Р 51232-98. Для подбора водоподготовительной установки требуется провести химический анализ воды.

Котел Е 1-9 Р на твердом топливе подключение и монтаж

Подключение и монтаж паровой установки с давлением более 0.07 МПа и температурой пара более 115 градусов должно производится строго по проекту. Для работы агрегата необходимо получить разрешение на ввод в эксплуатацию в Ростехнадзоре. Ростехнадзор проверяет правильность выполнения монтажных и пусконаладочных работ, а также соблюдения требований правил охраны труда.

Безопасность котла

Безопасная эксплуатация котла обеспечивается выполнением требований:

  • Инструкции по эксплуатации;
  • Правил технической эксплуатации тепловых энергоустановок.

Требования к помещениям паровой котельной регламентируются СП 89.13330.2016 «Котельные установки».

Твердотопливный котел Е 1 9Р с барабанами должен управляться автоматикой безопасности, имеющей сертификат соответствия.

Одним из самых важных устройств, обеспечивающих безопасную эксплуатацию агрегата, является предохранительный клапан. Он обеспечивает сброс пара при превышении давления в котле свыше допустимого и предохраняет установку от разрушения. Необходимые условия монтажа и эксплуатации котлоагрегата представлены в паспорте и руководстве по эксплуатации.

Гарантии изготовителя

На заводе изготовителе паровой котел Е 1/9 Р твердотопливный подвергается гидравлическому испытанию давлением 1,2 МПа (12 кгс/см2).

Гарантийный срок - 24 месяца со дня отгрузки с завода.

Гарантийное обслуживание включает в себя бесплатное устранение скрытых заводских дефектов, замену деталей и узлов вышедших из строя в период гарантийного срока при условии монтажа и эксплуатации оборудования Покупателем в соответствии с его назначением, технической документацией, техническими нормами, правилами ввода в эксплуатацию и эксплуатации данного оборудования.

Купить котел Е 1 9Р

Для того чтобы купить паровой котел Е 1 9 Р на твердом топливе в Ижевске, вы можете оформить заявку в отделе сбыта по телефону (38-52) 29-97-41 (42) либо оформить заявку онлайн. Наши менеджеры дадут консультацию по подбору вспомогательного оборудования для выбранной вами модели и рассчитают стоимость доставки до вашего региона и населенного пункта.

Дополнительно потребуется

Для эффективной и надежной работы парового котла Е 1 9Р вам потребуется дополнительное оборудование -  автоматика, 2 насоса (один рабочий, второй резервный) и дымосос. Мы предлагаем рассмотреть типовые варианты комплектации.

По необходимости устанавливаются золоуловители и водоподготовительное оборудование. Водоподготовка выбирается на основании анализа воды.

Типовую схему монтажа и обвязки котла вы можете посмотреть во вкладке схемы подключения.

Автоматика парового котла Е 1/9 барабанного типа на твердом топливе выполняет следующие функции:

  • ручной пуск котла, вентилятора и насоса;
  • автоматическое поддержание заданного давления пара на выходе из котла;
  • регулирование уровня воды в барабане котла.

Обеспечивает безопасность работы, выполняя аварийную остановку котла, вентилятора и насоса при:

  • понижении уровня воды в котле ниже критического уровня;
  • повышении уровня воды в котле выше критического уровня (перелив);
  • повышении давления пара в котле; понижении разряжения в топке котла.
Цена 120 610 рублей с НДС

Щит парового котла на твердом топливе выполняет следующие функции:

  • ручной пуск котла, вентилятора и насоса;
  • автоматическое поддержания уровня воды в котле;
  • автоматическое поддержание заданного давления пара на выходе из котла.

Выполняет аварийную остановку котла, вентилятора и насоса при:

  • понижении уровня воды в котле ниже критического уровня;
  • повышении уровня воды в котле выше критического уровня (перелив);
  • повышении давления пара в котле.
Цена 145 610 рублей с НДС

Используется в качестве питательного насоса в производственных паровых котельных

Цена 128 610 рублей с НДС

Дымосос для удаления дымовых газов из котла.

Цена 59 860 рублей с НДС
  • Компактный золоуловитель для твердотопливных котлов
  • Может устанавливаться как сразу за котлом, так и на улице
  • Универсальная конструкция позволяет организовать выход справа или слева, в зависимости от компоновки газоходов
Цена 54 960 рублей с НДС

Дымосос для удаления дымовых газов из котла.

Цена 101 460 рублей с НДС

Разрабатывает индивидуально на основе химического анализа воды потеребителя

Производим газоходы по индивидуальному заказу согласно схеме компоновки котельной. Системы газоходов могут включать в себя:

  • шиберы;
  • газоходы различного сечения;
  • переходы;
  • тройники;
  • карманы всасывающие дымососов.

Схема подключения

Барабанный угольный барабанный паровой котел Е 1/9Р, предназначен для получения насыщенного пара температурой не более 170 °С и давлением не более 0,9 (9) МПа (кгс/cм²) для технологических целей в производстве. Устанавливается в производственных и промышленных котельных.

План оборудования в паровой ручной котельной
Смотреть
Скачать

План расстановки оборудования в паровой ручной котельной

Схема {parts_subject_r}} Р без золоуловителя
Смотреть
Скачать

Схема подключения парового котла Е 1 9Р Р без золоуловителя

Если вам не требуется высокая очистка дымовых газов, котел может работать без золоуловителя. Схема подключения при этом следующая - дымовые газы выходят из котла в газоходы котельной, затем в дымосос и далее снова по газоходам в дымовую трубу. В зависимости от компоновки котельной дымосос может устанавливаться как в котельной, так и на улице. Наш завод производит газоходы и переходники к ним. Получив схему вашей котельной мы можем изготовить для вас комплект газоходов, переходников нужных размеров и сечений. На месте такие детали собираются как конструктор. Обращаем ваше внимание, что газоходы требуют изоляции, для защиты персонала от ожогов, так как уходящие газы имеют высокую температуру, а на улице газоходы требуют изоляции для избежания образования конденсата.

Схема подключения котла с золоуловителем
Смотреть
Скачать

Схема подключения котла с золоуловителем

Золоуловитель для твердотопливного парового котла Е 1 9Р Р обычно требуется устанавливать в котельных расположенных в жилой зоне. Они позволяют произвести дополнительную очистку дымовых газов перед их выбросом в атмосферу. Золоуловители нашего завода могут устанавливаться как сразу за котлом, так и снаружи котельной. Кроме очистки воздуха золоуловители увеличивают сопротивление в газовом тракте, поэтому при их установке требуется дымосос большей мощности.

Сертификаты и гарантии

Гарантийный срок на угольный барабанный паровой котел Е 1/9Р 24 месяца.

Сертификат на котлы паровые Е .jpg
Сертификат на паровые котлы Е

Отзывы о продукции

Отзыва о товаре пока нет, будьте первыми!

Видео обзор

Паровой котел Е 1-9 Р барабанного типа, производительность 1 т пара в час, температура пара не более 170 С°, давление пара 0.9 МПа (9) кгс/см², тепловая мощность 0.74 МВт (740 КВт), топливо - уголь. Применяется для технологических целей в производстве.

Смотреть видеообзор на

Вопрос ответ

Не ввел котельную в эксплуатацию. Что мне за это будет?

Ответственность за отсутствие разрешения на допуск котельной в эксплуатацию

Надзор за соблюдением требований ПТЭТЭ в организациях независимо от форм собственности и ведомственной принадлежности осуществляют органы государственного энергетического надзора. п 1.6. ПТЭТЭ. За несоблюдение ПТЭТЭ Ростехнадзор привлекает организации к ответсвенности по следующим статьям КоАП:

КоАП РФ Статья 9.9. Ввод в эксплуатацию топливо- и энергопотребляющих объектов без разрешения соответствующих органов осуществляющих государственный надзор на указанных объектах,

  • влечет наложение административного штрафа на должностных лиц в размере от одной тысячи до двух тысяч рублей;
  • на лиц, осуществляющих предпринимательскую деятельность без образования юридического лица, - от одной тысячи до двух тысяч рублей или административное приостановление деятельности на срок до девяноста суток;
  • на юридических лиц - от десяти тысяч до двадцати тысяч рублей или административное приостановление деятельности на срок до девяноста суток.

Также есть еще Статья 9.11. КоАП РФ, которая предусматривает аналогичную ответственность за несоблюдение ПТЭТЭ во время эксплуатации.

Статья 9.11. Нарушение правил пользования топливом и энергией, правил устройства, эксплуатации топливо- и энергопотребляющих установок, тепловых сетей, объектов хранения, содержания, реализации и транспортировки энергоносителей, топлива и продуктов его переработки

  • влечет наложение административного штрафа на граждан в размере от одной тысячи до двух тысяч рублей;
  • на должностных лиц - от двух тысяч до четырех тысяч рублей;
  • на лиц, осуществляющих предпринимательскую деятельность без образования юридического лица, - от двух тысяч до четырех тысяч рублей или административное приостановление деятельности на срок до девяноста суток;
  • на юридических лиц - от двадцати тысяч до сорока тысяч рублей или административное приостановление деятельности на срок до девяноста суток.

Какие котельные требуют допуск РТН в эксплуатацию:

Водогрейные и паровые котельные, в том числе блочно модульные котельные установки эксплуатируются в соответствии с "Правилами технической эксплуатации тепловых энергоустановок" Утвержденными приказом №115 от 24 марта 2003 г. (Далее ПТЭТЭ)

ПТЭТЭ распространяются на:

  • производственные, производственно-отопительные и отопительные котельные с абсолютным давлением пара не более 4,0 МПа и с температурой воды не более 200 град. С на всех видах органического топлива, а также с использованием нетрадиционных возобновляемых энергетических ресурсов;
  • паровые и водяные тепловых сетей всех назначений, включая насосные станции, системы сбора и возврата конденсата, и других сетевых сооружений;
  • системы теплопотребления всех назначений (технологических, отопительных, вентиляционных, горячего водоснабжения, кондиционирования воздуха, теплопотребляющих агрегатов, тепловых сетей потребителей, тепловых пунктов, других сооружений аналогичного назначения.

Приемка и допуск в эксплуатацию котельных:

Согласно ПТЭТЭ:

2.4.1. Новые или реконструированные тепловые энергоустановки принимаются в эксплуатацию в порядке, установленном ПТЭТЭ.

2.4.11. Включение в работу тепловых энергоустановок производится после их допуска в эксплуатацию.

2.4.2. Допуск в эксплуатацию новых и реконструированных тепловых энергоустановок осуществляют органы государственного энергетического надзора на основании действующих нормативно-технических документов.

Таким образом, исходя из приведенных норм, запрещается производить подключение объектов к сетям инженерно-технического обеспечения и осуществлять подачу коммунальных ресурсов без допуска в эксплуатацию тепловых энергоустановок органами энергетического надзора.

Порядок организации работ по выдаче разрешений на допуск в эксплуатацию энергоустановок и тепловых сетей (далее – Порядок) установлен приказом Федеральной службы по экологическому, технологическому и атомному надзору от 7 апреля 2008 г. № 212, зарегистрирован в Минюсте РФ 28 апреля 2008 г. № 11597 (РД 12-08-2008).

Вышеперечисленный документ не содержат требований о минимальной или максимальной нагрузке теплового пункта, при которой необходимо получать разрешение на допуск в эксплуатацию, соответственно необходимо получать разрешение на допуск в эксплуатацию новых или реконструированных тепловых энергоустановок, вне зависимости от их тепловой нагрузки.

Как проводится гидравлическое испытание котла

Гидравлические испытания водогрейного котла

1.1. Гидравлическому испытанию подлежат все новые или реконструированные тепловые энергоустановки после завершения монтажных работ.

1.2. Опрессовка и гидравлическое испытание котлов проводится давлением не менее 1,25 Рраб.

1.3. Опрессовка и гидравлическое испытание котлов проводиться водой температурой не ниже 5 ⁰С и не выше 40 ⁰С. Применение холодной воды (5-15 ⁰С) для испытаний может вызывать выпадения влаги на поверхностях объекта испытаний. Применение воды температуры выше 40 ⁰С может быть травмоопасно. Используемая для гидравлического испытания вода не должна загрязнять объект или вызывать интенсивную коррозию.

1.4. Проведение гидравлических испытаний котлов на плотность проводятся в следующем порядке:

  • Заполнить водой теплосети котельной и котел.
  • Спустить воздух системы теплосетей и котла через воздушники, установленные в верхних точках.
  • Котел отключить от действующих теплосетей, закрыв запорную арматуру или установить заглушку на прямом и обратном трубопроводе теплосети.

  • Установить пробное давление: включить циркуляционный и подпиточный насосы. Давление следует поднимать равномерно до достижения пробного. Общее время подъема давления должно быть не менее 10 мин.
  • Время выдержки под пробным давлением должно быть не менее 10 мин.
  • После выдержки под пробным давлением давление снижают до рабочего.

Давление воды при испытании контролируется по манометрам, установленными на подводящем и отводящем трубопроводах котла согласно приложению А.

1.5. Контролируемые параметры при гидравлических испытаниях:

  • Показания манометров. Падения давления не допускается в течении выдержки пробным давлениям;

В случае выявления падения давления согласно показаниям манометров, проводиться визуальный контроль.

  • Визуальный контроль. После снижения давления до рабочего не допускается видимых остаточных деформаций, трещин или признаков разрыва, течи в сварных и разъемных соединениях и в основном металле.

Манометры и показывающие приборы, должны быть установлены согласно схеме.

Акт гидравлического испытания котлов образец

«___» ________ 20___ г.
Начальник производствафамилия, инициалы
Мастер сменыфамилия, инициалы
Работник, проводивший испытанияфамилия, инициалы
Произвели осмотр и проверку качества сборкинаименование изделия, заводской номер
и составили акт о нижеследующем:
1. Сборканаименование изделия, вид проектной, технологической документации
2. В процессе сборки внесены следующие отступления от технической документацииперечень отступлений
согласованныедолжность, фамилия, инициалы
3. Котел испытан гидростатическим методом пробным давлением_____МПа (_____кгс/см2) в течении _______мин.
4. В течение времени нахождения под пробным давлением падение давлениянаблюдалось или не наблюдалось
5. В течение времени нахождения под максимальным рабочим давлением ___МПа (___кгс/см2)отсутствие или наличие дефектов
Принято решение:
Котел (признается или не признается) выдержавшим испытание гидростатическим методом.
Начальник производствафамилия, инициалы, подпись
Мастер сменыфамилия, инициалы, подпись
Работник, проводивший испытанияфамилия, инициалы, подпись

Акт гидравлического испытания котлов образец (скачать в Word)

Акт гидравлического испытания котлов образец (скачать в pdf)

  • Технические
    характеристики
  • Описание
    товара
  • Комплект
    поставки
  • Дополнительно
    потребуется
  • Схема
    подключения
  • Доп
    услуги
  • Сертификаты и
    гарантии
  • Отзывы о
    продукции
  • Видео
    обзор
  • Вопрос
    ответ
Документы завода
  • Сертификаты завода
  • Членство в СРО
  • Аттестованная технология сварки
  • Патенты на котельное оборудование
  • Товарные знаки
Смотреть все документы
Сертификат на водогрейные котлы на твердом и жидком топливе
Сертификат на водогрейные котлы на газе и жидком топливе
Сертификат на котлы отопительные паровые КП
Сертификат на топки
Сертификат на щиты управления
Сертификат на скиповые подъемники
Сертификат на золоуловители (циклоны)
Сертификат на конвейеры скребковые
Сертификат на дробилки
Сертификат на клапаны предохранительные
Сертификат на бункер-накопитель механизированный
Сертификат на автоматику газовых горелок
Членство в СРО
Членство в СРО
Аттестованная технология сварки
Свидетельство аттестованной технологии сварки
Патент на отопительный котел
Патент на водогрейный котел
Патент на топку водогрейного котла
Патент на водогрейный газовый котел
Патент на водогрейный котел
Патент на топочное устройство твердотопливного котла
Патент на водогрейный котел
HEATEXPERT товарный знак
KVZR товарный знак
STEAMEXPERT товарный знак
Другая похожая продукция
Котел паровой Е 1 9 Г
Лизинг
Производительность, кг/ч1000
ТопливоГаз
Температура пара, не более, °C170
Давление пара, не более, МПа0.9
1 737 000 р. Цена с НДС
Паровой котел Е 1.0 0.9 Р
Лизинг
Производительность, кг/ч1000
ТопливоТвердое, Уголь
Температура пара, не более, °C170
Давление пара, не более, МПа0.9
1 692 000 р. Цена с НДС
Котел 1000 кг пара в час до 130 °С твердотопливный
Лизинг
Производительность, кг/ч1000
ТопливоУголь, Твердое
Температура пара, не более, °C130
Давление пара, не более, МПа0.17
1 421 960 р. Цена с НДС
Вы просматривали эти товары
Котел паровой Е 1/9 Р
Лизинг
Производительность, кг/ч1000
ТопливоТвердое, Уголь
Температура пара, не более, °C170
Давление пара, не более, МПа0.9
1 845 000 р. Цена с НДС
Цена по запросу
Паровой котел КП 300 на дровах
Лизинг
Производительность, кг/ч300
ТопливоТвердое, Дрова
Температура пара, не более, °C115
Давление пара, не более, МПа0.07
523 960 р. Цена с НДС
1 203 960 р. Цена с НДС
background